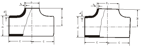
Carbon Steel Pipe Fitting--Tee
ASME/ANSI B16.9
Nominal
Pipe Size
(NPS)
inch |
Dimensions |
Wall Thickness - Approx.Weight |
| Outside Diameter at Bevel: D1/D2 |
Center to End |
Sch. 20 |
Sch. 30 |
STD |
Sch. 40 |
Sch. 60 |
D1
mm |
D2
mm |
C
mm |
M
mm |
t1
mm |
t2
mm |
kg |
t1
mm |
t2
mm |
kg |
t1
mm |
t2
mm |
kg |
t1
mm |
t2
mm |
kg |
t1
mm |
t2
mm |
kg |
| 11/211/2 |
48.3 |
48.3 |
57.2 |
57.2 |
- |
- |
- |
- |
- |
- |
3.68 |
2.68 |
0.92 |
3.68 |
2.68 |
0.92 |
- |
- |
- |
| 23/4 |
60.3 |
26.7 |
63.5 |
44.5 |
- |
- |
- |
- |
- |
- |
3.91 |
2.87 |
1.49 |
3.91 |
2.87 |
1.49 |
- |
- |
- |
| 21 |
|
33.4 |
63.5 |
50.8 |
- |
- |
- |
- |
- |
- |
|
3.38 |
1.49 |
|
3.38 |
1.49 |
- |
- |
- |
| 211/4 |
|
42.2 |
63.5 |
57.2 |
- |
- |
- |
- |
- |
- |
|
3.56 |
1.49 |
|
3.56 |
1.49 |
- |
- |
- |
| 211/2 |
|
48.3 |
63.5 |
60.5 |
- |
- |
- |
- |
- |
- |
|
3.68 |
1.49 |
|
3.68 |
1.49 |
- |
- |
- |
| 22 |
|
60.3 |
63.5 |
63.5 |
- |
- |
- |
- |
- |
- |
|
3.91 |
1.49 |
|
3.91 |
1.49 |
- |
- |
- |
| 21/21 |
70.3 |
33.4 |
76.2 |
57.2 |
- |
- |
- |
- |
- |
- |
5.16 |
3.38 |
2.68 |
5.16 |
3.38 |
2.68 |
- |
- |
- |
| 21/211/4 |
|
42.2 |
76.2 |
63.5 |
- |
- |
- |
- |
- |
- |
|
3.56 |
2.68 |
|
3.56 |
2.68 |
- |
- |
- |
| 21/211/2 |
|
48.3 |
76.2 |
66.5 |
- |
- |
- |
- |
- |
- |
|
3.68 |
2.68 |
|
3.68 |
2.68 |
- |
- |
- |
| 21/22 |
|
60.3 |
76.2 |
69.9 |
- |
- |
- |
- |
- |
- |
|
3.91 |
2.68 |
|
3.91 |
2.68 |
- |
- |
- |
| 21/221/2 |
|
73.0 |
76.2 |
76.2 |
- |
- |
- |
- |
- |
- |
|
5.16 |
2.68 |
|
5.16 |
2.68 |
- |
- |
- |
| 311/4 |
88.9 |
42.2 |
85.9 |
69.9 |
- |
- |
- |
- |
- |
- |
5.49 |
3.56 |
3.75 |
5.49 |
3.56 |
3.75 |
- |
- |
- |
| 311/2 |
|
48.3 |
85.9 |
73.2 |
- |
- |
- |
- |
- |
- |
|
3.68 |
3.75 |
|
3.68 |
3.75 |
- |
- |
- |
| 32 |
|
60.3 |
85.9 |
76.2 |
- |
- |
- |
- |
- |
- |
|
3.91 |
3.75 |
|
3.91 |
3.75 |
- |
- |
- |
| 321/2 |
|
73.0 |
85.9 |
82.6 |
- |
- |
- |
- |
- |
- |
|
5.16 |
3.75 |
|
5.16 |
3.75 |
- |
- |
- |
| 33 |
|
88.9 |
85.9 |
85.9 |
- |
- |
- |
- |
- |
- |
|
5.49 |
3.75 |
|
5.49 |
3.75 |
- |
- |
- |
| 411/2 |
114.3 |
48.3 |
104.6 |
85.9 |
- |
- |
- |
- |
- |
- |
6.05 |
3.68 |
6.50 |
6.05 |
3.68 |
6.50 |
- |
- |
- |
| 42 |
|
60.3 |
104.6 |
88.9 |
- |
- |
- |
- |
- |
- |
|
3.91 |
6.50 |
|
3.91 |
6.50 |
- |
- |
- |
| 421/2 |
|
73.0 |
104.6 |
95.3 |
- |
- |
- |
- |
- |
- |
|
5.16 |
6.50 |
|
5.16 |
6.50 |
- |
- |
- |
| 43 |
|
88.9 |
104.6 |
98.6 |
- |
- |
- |
- |
- |
- |
|
5.49 |
6.50 |
|
5.49 |
6.50 |
- |
- |
- |
| 44 |
|
114.3 |
104.6 |
104.6 |
- |
- |
- |
- |
- |
- |
|
6.02 |
6.50 |
|
6.02 |
6.50 |
- |
- |
- |
| 52 |
141.3 |
60.3 |
124.7 |
104.6 |
- |
- |
- |
- |
- |
- |
6.55 |
3.91 |
10.00 |
6.55 |
3.91 |
10.00 |
- |
- |
- |
| 521/2 |
|
73.0 |
124.7 |
108.0 |
- |
- |
- |
- |
- |
- |
|
5.16 |
10.00 |
|
5.16 |
10.00 |
- |
- |
- |
| 53 |
|
88.9 |
124.7 |
111.3 |
- |
- |
- |
- |
- |
- |
|
5.49 |
10.00 |
|
5.49 |
10.00 |
- |
- |
- |
| 54 |
|
114.3 |
124.7 |
117.3 |
- |
- |
- |
- |
- |
- |
|
6.02 |
10.00 |
|
6.02 |
10.00 |
- |
- |
- |
| 55 |
|
141.3 |
124.7 |
124.3 |
- |
- |
- |
- |
- |
- |
|
6.55 |
10.00 |
|
6.55 |
10.00 |
- |
- |
- |
| 621/2 |
168.3 |
73.0 |
142.7 |
120.7 |
- |
- |
- |
- |
- |
- |
7.11 |
5.16 |
13.50 |
7.11 |
5.16 |
13.50 |
- |
- |
- |
| 63 |
|
88.9 |
142.7 |
124.0 |
- |
- |
- |
- |
- |
- |
|
5.49 |
13.50 |
|
5.49 |
13.50 |
- |
- |
- |
| 64 |
|
114.3 |
142.7 |
130.0 |
- |
- |
- |
- |
- |
- |
|
6.02 |
13.50 |
|
6.02 |
13.50 |
- |
- |
- |
| 65 |
|
141.3 |
142.7 |
136.7 |
- |
- |
- |
- |
- |
- |
|
6.55 |
13.50 |
|
6.55 |
13.50 |
- |
- |
- |
| 66 |
|
168.3 |
142.7 |
142.7 |
- |
- |
- |
- |
- |
- |
|
7.11 |
13.50 |
|
7.11 |
13.50 |
- |
- |
- |
| 84 |
219.1 |
114.3 |
177.8 |
155.4 |
- |
- |
- |
- |
- |
- |
8.18 |
6.02 |
24.50 |
8.18 |
6.02 |
24.50 |
- |
- |
- |
| 85 |
|
141.3 |
177.8 |
162.1 |
- |
- |
- |
- |
- |
- |
|
6.55 |
24.50 |
|
6.55 |
24.50 |
- |
- |
- |
| 86 |
|
168.3 |
177.8 |
168.1 |
- |
- |
- |
- |
- |
- |
|
7.11 |
24.50 |
|
7.11 |
24.50 |
- |
- |
- |
| 88 |
|
219.1 |
177.8 |
177.8 |
- |
- |
- |
- |
- |
- |
|
8.18 |
24.50 |
|
8.18 |
24.50 |
- |
- |
- |
| 104 |
237.0 |
114.3 |
215.9 |
184.2 |
- |
- |
- |
- |
- |
- |
9.27 |
6.02 |
39.60 |
6.02 |
39.60 |
|
- |
- |
- |
| 105 |
|
141.3 |
215.9 |
190.5 |
- |
- |
- |
- |
- |
- |
|
6.55 |
39.60 |
6.55 |
39.60 |
|
- |
- |
- |
| 106 |
|
168.3 |
215.9 |
193.5 |
- |
- |
- |
- |
- |
- |
|
7.11 |
|
7.11 |
39.60 |
|
- |
- |
- |
| 108 |
|
219.1 |
215.9 |
203.2 |
6.35 |
6.35 |
33.20 |
7.80 |
7.04 |
38.60 |
|
8.18 |
|
8.18 |
39.60 |
12.70 |
10.31 |
10.31 |
53.60 |
| 1010 |
|
273.0 |
215.9 |
215.9 |
|
6.35 |
34.70 |
|
7.80 |
38.60 |
|
9.27 |
|
9.27 |
41.00 |
|
12.70 |
12.70 |
58.40 |
| 125 |
323.9 |
141.3 |
254.0 |
215.9 |
- |
- |
- |
- |
- |
- |
9.53 |
6.55 |
63.00 |
6.55 |
67.20 |
|
- |
- |
- |
| 126 |
|
168.3 |
254.0 |
218.9 |
- |
- |
- |
- |
- |
- |
|
7.11 |
|
7.11 |
67.20 |
|
- |
- |
- |
| 128 |
|
219.1 |
254.0 |
228.6 |
6.35 |
6.35 |
41.20 |
8.38 |
7.04 |
54.80 |
|
8.18 |
|
8.18 |
67.20 |
14.27 |
10.31 |
10.31 |
77.50 |
| 1210 |
|
273.0 |
254.0 |
241.3 |
|
6.35 |
43.40 |
|
7.80 |
56.60 |
|
9.27 |
|
9.27 |
70.00 |
|
12.70 |
12.70 |
95.00 |
| 1212 |
|
323.9 |
254.0 |
254.0 |
|
6.35 |
43.40 |
|
8.38 |
56.60 |
|
9.53 |
|
10.31 |
70.50 |
|
14.27 |
14.27 |
95.00 |
| 146 |
355.6 |
168.3 |
279.4 |
238.3 |
- |
- |
- |
- |
- |
- |
9.53 |
7.11 |
11.30 |
7.11 |
100.0 |
|
|
|
|
| 148 |
|
219.1 |
279.4 |
247.7 |
7.92 |
6.35 |
78.30 |
9.53 |
7.04 |
82.60 |
|
8.18 |
|
8.18 |
100.0 |
15.09 |
10.31 |
10.31 |
127.1 |
| 1410 |
|
273.0 |
279.4 |
257.0 |
|
6.35 |
78.30 |
|
7.80 |
82.60 |
|
9.27 |
|
9.27 |
100.0 |
|
12.70 |
12.71 |
127.1 |
| 1412 |
|
233.9 |
279.4 |
269.7 |
|
6.35 |
80.60 |
|
8.38 |
85.00 |
|
9.53 |
|
10.31 |
105.0 |
|
14.27 |
14.27 |
135.0 |
| 1414 |
|
355.6 |
279.4 |
279.4 |
|
7.92 |
80.60 |
|
9.53 |
85.00 |
|
9.53 |
|
11.13 |
105.0 |
|
15.09 |
15.09 |
135.0 |
| 166 |
406.4 |
168.3 |
304.8 |
263.7 |
- |
- |
- |
- |
- |
- |
9.53 |
7.11 |
12.70 |
7.11 |
125.5 |
|
- |
- |
- |
| 168 |
|
219.1 |
304.8 |
273.1 |
7.92 |
6.35 |
98.00 |
9.53 |
7.04 |
106.5 |
|
8.18 |
|
8.18 |
125.5 |
16.66 |
10.31 |
10.31 |
160.3 |
| 1610 |
|
273.0 |
304.8 |
282.4 |
|
6.35 |
98.00 |
|
7.80 |
106.5 |
|
9.27 |
|
9.27 |
125.5 |
|
12.70 |
12.70 |
162.8 |
| 1612 |
|
323.0 |
304.8 |
295.1 |
|
6.35 |
100.0 |
|
8.38 |
106.5 |
|
9.53 |
|
10.31 |
129.8 |
|
14.27 |
14.27 |
172.9 |
| 1614 |
|
355.6 |
304.8 |
304.8 |
|
7.92 |
100.0 |
|
9.53 |
110.0 |
|
9.53 |
|
11.13 |
129.8 |
|
15.09 |
15.09 |
172.9 |
| 1616 |
|
406.4 |
304.8 |
304.8 |
|
7.92 |
100.0 |
|
9.53 |
110.0 |
|
9.53 |
|
12.70 |
129.8 |
|
16.66 |
16.66 |
180.5 |
| Wall Thickness - Approx.Weight |
| XS |
Sch. 80 |
Sch. 100 |
Sch. 120 |
Sch. 140 |
Sch. 160 |
XXS |
t1
mm |
t2
mm |
kg |
t1
mm |
t2
mm |
kg |
t1
mm |
t2
mm |
kg |
t1
mm |
t2
mm |
kg |
t1
mm |
t2
mm |
kg |
t1
mm |
t2
mm |
kg |
t1
mm |
t2
mm |
kg |
| 5.08 |
8.05 |
1.27 |
5.08 |
8.05 |
1.27 |
- |
- |
- |
- |
- |
- |
- |
- |
- |
7.14 |
7.14 |
1.79 |
10.15 |
10.15 |
1.54 |
| 5.54 |
3.91 |
2.15 |
5.54 |
3.91 |
2.15 |
- |
- |
- |
- |
- |
- |
- |
- |
- |
8.74 |
5.56 |
3.18 |
11.07 |
7.82 |
4.0 |
|
4.55 |
2.15 |
|
4.55 |
2.15 |
- |
- |
- |
- |
- |
- |
- |
- |
- |
|
6.35 |
3.18 |
|
9.09 |
4.0 |
|
4.85 |
2.15 |
|
4.85 |
2.15 |
- |
- |
- |
- |
- |
- |
- |
- |
- |
|
6.35 |
3.18 |
|
9.70 |
4.0 |
|
5.08 |
2.15 |
|
5.08 |
2.15 |
- |
- |
- |
- |
- |
- |
- |
- |
- |
|
7.14 |
3.18 |
|
10.15 |
4.0 |
|
5.54 |
2.15 |
|
5.54 |
2.15 |
- |
- |
- |
- |
- |
- |
- |
- |
- |
|
83.74 |
3.18 |
|
11.07 |
4.0 |
| 7.01 |
4.55 |
2.95 |
7.01 |
4.55 |
2.95 |
- |
- |
- |
- |
- |
- |
- |
- |
- |
9.53 |
6.35 |
3.58 |
14.02 |
9.09 |
4.0 |
|
4.85 |
2.95 |
|
4.85 |
2.95 |
- |
- |
- |
- |
- |
- |
- |
- |
- |
|
6.35 |
3.58 |
|
9.70 |
4.15 |
|
5.08 |
2.95 |
|
5.08 |
2.95 |
- |
- |
- |
- |
- |
- |
- |
- |
- |
|
7.14 |
3.58 |
|
10.15 |
4.2 |
|
5.54 |
2.95 |
|
5.54 |
2.95 |
- |
- |
- |
- |
- |
- |
- |
- |
- |
|
8.74 |
3.58 |
|
11.07 |
4.2 |
|
7.01 |
2.95 |
|
7.01 |
2.95 |
- |
- |
- |
- |
- |
- |
- |
- |
- |
|
9.53 |
3.58 |
|
14.02 |
4.5 |
| 7.62 |
4.85 |
4.29 |
7.62 |
4.85 |
4.29 |
- |
- |
- |
- |
- |
- |
- |
- |
- |
11.13 |
6.35 |
5.65 |
15.24 |
9.70 |
6.25 |
|
5.08 |
4.29 |
|
5.08 |
4.29 |
- |
- |
- |
- |
- |
- |
- |
- |
- |
|
7.14 |
5.75 |
|
10.15 |
6.3 |
|
5.54 |
4.29 |
|
5.54 |
4.29 |
- |
- |
- |
- |
- |
- |
- |
- |
- |
|
8.74 |
5.85 |
|
11.07 |
6.35 |
|
7.01 |
4.29 |
|
7.01 |
4.29 |
- |
- |
- |
- |
- |
- |
- |
- |
- |
|
9.53 |
6.15 |
|
14.02 |
6.6 |
|
7.62 |
4.29 |
|
7.62 |
4.29 |
- |
- |
- |
- |
- |
- |
- |
- |
- |
|
11.13 |
6.58 |
|
15.24 |
7.01 |
| 8.56 |
5.08 |
7.65 |
8.56 |
5.08 |
7.65 |
- |
- |
- |
- |
- |
- |
- |
- |
- |
13.49 |
7.14 |
10.8 |
17.12 |
10.15 |
14.5 |
|
5.54 |
7.65 |
|
5.54 |
7.65 |
- |
- |
- |
- |
- |
- |
- |
- |
- |
|
8.74 |
10.8 |
|
11.07 |
14.5 |
|
7.01 |
7.65 |
|
7.01 |
7.65 |
- |
- |
- |
- |
- |
- |
- |
- |
- |
|
9.53 |
10.8 |
|
14.02 |
14.5 |
|
7.62 |
7.65 |
|
7.62 |
7.65 |
- |
- |
- |
- |
- |
- |
- |
- |
- |
|
11.13 |
11.1 |
|
15.24 |
14.5 |
|
8.56 |
7.65 |
|
8.56 |
7.65 |
- |
- |
- |
11.16 |
11.13 |
9.0 |
- |
- |
- |
|
13.49 |
11.8 |
|
17.12 |
15.0 |
| 9.53 |
5.54 |
13.5 |
9.53 |
5.54 |
13.5 |
- |
- |
- |
- |
- |
- |
- |
- |
- |
15.88 |
8.74 |
23.0 |
19.05 |
11.07 |
27.2 |
|
7.01 |
13.5 |
|
7.01 |
13.5 |
- |
- |
- |
- |
- |
- |
- |
- |
- |
|
9.53 |
23.0 |
|
14.02 |
27.2 |
|
7.62 |
13.5 |
|
7.62 |
13.5 |
- |
- |
- |
- |
- |
- |
- |
- |
- |
|
11.13 |
23.0 |
|
15.24 |
27.7 |
|
8.56 |
13.5 |
|
8.56 |
13.5 |
- |
- |
- |
12.70 |
11.13 |
17.5 |
- |
- |
- |
|
13.49 |
23.0 |
|
17.12 |
28.8 |
|
9.53 |
13.5 |
|
9.53 |
13.5 |
- |
- |
- |
- |
12.70 |
17.5 |
- |
- |
- |
|
15.58 |
23.0 |
|
19.05 |
29.9 |
| 10.97 |
7.01 |
19.3 |
10.97 |
7.01 |
19.3 |
- |
- |
- |
- |
- |
- |
- |
- |
- |
18.26 |
9.53 |
30.9 |
21.95 |
14.02 |
34.8 |
|
7.62 |
19.3 |
|
7.62 |
19.3 |
- |
- |
- |
- |
- |
- |
- |
- |
- |
|
11.13 |
30.9 |
|
15.24 |
34.8 |
|
8.56 |
19.3 |
|
8.56 |
19.3 |
- |
- |
- |
14.27 |
11.13 |
24.0 |
- |
- |
- |
|
13.49 |
32.7 |
|
17.12 |
34.8 |
|
9.53 |
19.3 |
|
9.53 |
19.3 |
- |
- |
- |
|
12.70 |
24.0 |
- |
- |
- |
|
15.88 |
32.7 |
|
19.05 |
35.6 |
|
10.97 |
19.3 |
|
10.97 |
19.3 |
- |
- |
- |
|
14.27 |
24.0 |
- |
- |
- |
|
18.26 |
39.5 |
|
21.95 |
35.6 |
| 12.70 |
8.56 |
34.7 |
12.70 |
8.56 |
34.7 |
- |
- |
- |
18.26 |
11.13 |
43.2 |
- |
- |
- |
23.01 |
13.49 |
51.0 |
22.23 |
17.12 |
50.4 |
|
9.53 |
34.7 |
|
9.53 |
34.7 |
- |
- |
- |
|
12.70 |
43.2 |
- |
- |
- |
|
15.88 |
55.6 |
|
19.05 |
50.4 |
|
10.97 |
34.7 |
|
10.97 |
34.7 |
- |
- |
- |
|
14.27 |
49.5 |
- |
- |
- |
|
18.26 |
55.6 |
|
21.95 |
51.3 |
|
12.7 |
34.7 |
|
12.7 |
34.7 |
15.09 |
15.09 |
43.50 |
|
18.26 |
49.5 |
20.62 |
20.62 |
54.0 |
|
23.01 |
58.0 |
|
22.23 |
55.5 |
| 12.7 |
8.56 |
53.5 |
15.09 |
8.56 |
59.7 |
- |
- |
- |
21.44 |
11.13 |
71.3 |
- |
- |
- |
28.58 |
13.49 |
85.0 |
25.40 |
17.12 |
79.3 |
|
9.53 |
53.5 |
|
9.53 |
59.7 |
- |
- |
- |
|
12.7 |
71.3 |
- |
- |
- |
|
15.88 |
91.3 |
|
19.05 |
79.3 |
|
10.97 |
54.5 |
|
10.97 |
59.7 |
- |
- |
- |
|
14.27 |
81.7 |
- |
- |
- |
|
18.26 |
102.2 |
|
21.95 |
90.9 |
|
12.7 |
58.4 |
|
12.7 |
65.8 |
18.26 |
15.09 |
73.5 |
|
18.26 |
88.5 |
25.40 |
20.62 |
95.0 |
|
23.01 |
113.0 |
|
22.23 |
90.9 |
|
12.7 |
58.4 |
|
12.7 |
67.5 |
|
18.26 |
74.0 |
|
21.44 |
93.0 |
|
25.40 |
98.5 |
|
28.58 |
129.3 |
|
25.40 |
98.5 |
| 12.7 |
9.53 |
74.8 |
17.48 |
9.53 |
85.4 |
- |
- |
- |
25.4 |
12.7 |
102.6 |
|
- |
- |
33.32 |
15.88 |
140.3 |
25.40 |
19.05 |
119.5 |
|
10.97 |
74.8 |
|
10.97 |
85.4 |
- |
- |
- |
|
14.27 |
102.6 |
|
- |
- |
- |
18.26 |
140.3 |
|
21.95 |
119.5 |
|
12.7 |
74.8 |
|
12.7 |
85.4 |
21.44 |
15.09 |
122.5 |
|
18.26 |
131.2 |
28.58 |
20.62 |
140.0 |
|
23.01 |
152.3 |
|
22.23 |
129.1 |
|
12.7 |
74.8 |
|
12.7 |
106.2 |
|
18.26 |
124.9 |
|
21.44 |
140.9 |
|
25.40 |
158.0 |
|
28.58 |
163.5 |
|
25.40 |
150.0 |
|
12.7 |
74.8 |
|
12.7 |
115.0 |
|
21.44 |
136.2 |
|
25.4 |
150.0 |
|
28.58 |
176.5 |
|
33.32 |
183.8 |
|
25.40 |
150.0 |
| 12.7 |
10.97 |
103.8 |
19.05 |
10.97 |
141.9 |
- |
- |
- |
27.79 |
14.27 |
205.0 |
|
- |
- |
35.71 |
18.26 |
250.0 |
- |
- |
- |
|
12.7 |
103.8 |
|
12.7 |
141.9 |
- |
- |
195.0 |
|
18.26 |
220.0 |
31.75 |
20.62 |
230.0 |
|
23.01 |
250.0 |
- |
- |
- |
|
12.7 |
103.8 |
|
12.7 |
160.0 |
|
18.26 |
195.0 |
|
21.44 |
220.0 |
|
25.40 |
245.0 |
|
28.58 |
265.0 |
- |
- |
- |
|
12.7 |
103.8 |
|
12.7 |
162.3 |
|
21.44 |
206.0 |
|
25.4 |
235.0 |
|
28.58 |
255.0 |
|
33.32 |
270.0 |
- |
- |
- |
|
12.7 |
103.8 |
|
12.7 |
162.3 |
|
23.83 |
206.0 |
|
27.79 |
235.0 |
|
31.75 |
255.0 |
|
35.71 |
270.0 |
- |
- |
- |
| 12.7 |
10.97 |
130.5 |
21.44 |
10.97 |
163.9 |
- |
- |
- |
30.96 |
14.27 |
265.4 |
- |
- |
- |
40.49 |
18.26 |
320.8 |
- |
- |
- |
|
12.7 |
130.5 |
|
12.7 |
163.9 |
21.19 |
15.09 |
229.8 |
|
18.26 |
265.4 |
36.53 |
20.62 |
295.0 |
|
23.01 |
322.0 |
- |
- |
- |
|
12.7 |
130.5 |
|
15.09 |
164.9 |
|
18.26 |
229.0 |
|
21.44 |
280.0 |
|
25.40 |
300.0 |
|
28.58 |
330.5 |
- |
- |
- |
|
12.7 |
130.5 |
|
17.48 |
181.6 |
|
21.44 |
258.2 |
|
25.4 |
280.0 |
|
28.58 |
310.0 |
|
33.32 |
340.0 |
- |
- |
- |
|
12.7 |
130.5 |
|
19.05 |
195.0 |
|
23.83 |
266.5 |
|
27.79 |
295.0 |
|
31.75 |
340.0 |
|
35.71 |
360.0 |
- |
- |
- |
|
12.7 |
130.5 |
|
21.44 |
195.0 |
|
26.19 |
270.6 |
|
30.96 |
295.0 |
|
36.53 |
260.0 |
|
40.49 |
389.0 |
- |
- |
- |
|
|