Hong Yuan Valve Industry Index Page Hong Yuan Valves Industry CO., LTD
| Butterfly Valve | Wafer Check Valve | Balance valve | Gate Valve | Globe Valve | Ball Valve | Y Strainer | Flange | Pipe fitting | About us |

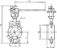
Metal Sealed ( Hard Sealed ) Butterfly Valve Dimensions and Weight

Model: Hard Sealed Butterfly Valve ( fig: BV5000 W)

This kind of butterfly valve is suitable for use in Chemical, Oil, power generating , metallurgy industries and city  heat-supply system as a flow adjusting and shutting unit.
  • Safe and reliable in operation, high interference-resistance.
  • Adopting design of double-eccentric, the friction on sealing ring may be decreased to extend service life.
construction dimension of butterfly valve BV5000 series hardsealed  butterfly valve

Dimensions and Weight

Size (DN) L D1 D Z-d H Ho A B Wt/ kgs
50 43 125 165 4-18 112 460 355 92 16
65 46 145 185 8-18 115 480 355 92 18
80 49 160 200 8-18 120 490 355 92 24
100 56 190 235 8-22 140 632 550 138 29
125 64 220 270 8-26 170 678 550 138 37
150 70 250 300 8-26 180 743 550 138 41
200 71 310 360 12-26 210 690 250 170 52
250 76 370 425 12-30 240 767 450 220 68
300 83 430 485 12-30 290 950 450 280 80
350 92 490 555 16-33 320 1014 650 280 149
400 102 550 620 16-36 350 1070 650 280 248
450 114 600 670 20-36 380 1140 850 280 295
500 127 660 730 20-36 410 1220 850 380 360
600 154 770 845 20-39 470 1380 1250 380 480
700 165 875 960 24-42 550 1580 1250 380 620

Specifications

Size DN (mm) 50---14000
Nominal Pressure PN  (  MPa) 1.0 1.6
Test Pressure PN  (MPa) Shell Test 1.5 2.4
Seal  Test 1.1 1.76
Suitable Medium Water, Steam, Oil, Sea Water, Acids ect
Suitable Temp -40--- 570

Butterfly Valve

Butterfly Valve Overview
BV1000W
BV1000L
BV1000S
BV2000W
BV2000S
BV2000L
BV3000W
BV3000L
BV4000
Hard Sealed Type
Flanged Type
Grooved End Butterfly Valve
Antiseptic Butterfly Valve

Material of parts
Torque
Definition of CV Value
Specification
Actuator

Order Code
Inquiry Online


Butterfly Valve Wafer check valve Balance valve Gate Valve Globe Valve Ball Valve Y Strainer Flange Pipe fitting

we are selling  our products to the world Copyright © Tang Shan Hong Yuan valve industry Co. LTD. All Rights Reserved
Contact info@hyvp.comwith questions or comments.
Websites: http://www.hyvp.com