Hong Yuan Valve Industry Index Page Hong Yuan Valves Industry CO., LTD
| Butterfly Valve | Wafer Check Valve | Balance valve | Gate Valve | Globe Valve | Ball Valve | Y Strainer | Flange| Pipe fitting | About us |

Lift Check Valve

Non Slamming. 
Spring closing for positive leak tight closing. 
Lighter, Smaller, Robust, Less expensive, Easy to install and maintain. Installation between flanges.
Installation in any place and direction. 
Very low opening pressures. 
Valves are Self contouring type. 
Valves available in soft & metal to metal seat. 
Zero leakage for Soft Seated Valve. 
Testing as per API 598 or as per clients requirement. 
Available in PN 10 and ANSI 125 rating. 

MODEL: Lift Check Valve CL-01, Flange to Specification:  JIS 10K FF, Face to Face: JIS 10K

กก

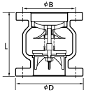
overall and dimension of lift check valve

Dimensions of CL-01( unit: mm )

Model

CL-01

Size L D B
40 150 140 40
50 175 155 50
65 185 175 65
80 195 185 80
100 200 210 100
125 254 250 125
150 280 280 150
200 368 330 200
250 400 400 250
300 460 445 300

Wafer Check Valve

About Check Valve
Specification
Order Code
Order On Line
CW1000
CW2000
CW3000
CW4000
CW5000
CW6000

Swing Check Valve

Overall and Dimensions

Lift Check Valve

Specification
Valve Dimensions

Smolensky Check Valve

smolensky check valve
Valve Dimensions

lift check valve Cl-01
Butterfly Valve Wafer check valve Balance valve Gate Valve Globe Valve Ball Valve Y Strainer Flange Pipe fitting

we are selling  our products to the world Copyright © Tang Shan Hong Yuan valve industry Co. LTD. All Rights Reserved
Contact info@hyvp.comwith questions or comments.
Websites: http://www.hyvp.com