Hong Yuan Valve Industry Index Page Hong Yuan Valves Industry CO., LTD
| Butterfly Valve | Wafer Check Valve | Balance valve | Gate Valve | Globe Valve | Ball Valve | Y Strainer | Flange| Pipe fitting | About us |

Smolensky Check Valve

The smolensky check valve is the lift check valve added by pass. It can make a function of harmless check valve, dashpot check valve.

  • Water Hammer!-The Enemy of  Flow Pipeline

The water hammer occurs by sudden flow stopping caused by pump-off or pressure wave caused from the pipes bending.

  • Smolensky check valve----No Impact , No Dining.

This commodity is the superb check valve designed to prevent the water impact with the operation of buffer hill&spring inside, thereby the water hammer&breakage of the pipes can be protected.

  • Theory of Operation

When the pump starts, the pressure of the fluid pushes disc(2)then the fluid flows to chamber (c) through the chamber (A) &(B). When the pump stops, momentarily the pressure in the pipeline falls down then the short stagnation of the flow occurs and the reverse flow follows soonest. But at the same time by the action of spring(1)&buffer hill (4)disc(2) adheres to body seat(3)therefore any reverse flow&water hammer can be prevented.

  • Advantage

- No water hammer
- No trouble by the simple structure
- Easy repair
- When the repair or replacement of the pipe is done, the water in the body champer is drained by the attached by-pass valve.
- No impact &noise
- Scrupulous &safe check
- No leakage
- Available for the vertical and horizontal piping connection
- Body and other part materials can be selected by customers' requests & sites' conditions

 

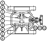
overall of smolensky check valve

No Name of Part Material
1 Body Cast Iron
2 Disc Holder Cast Iron
3 Buffer  Cast Iron
4 Upper Guide Ductile Iron
5 Seat Ring  Bronze
6 Disc Washer Steel Plate
7 Spring SS304
8 Soft Seat  NBR
9 Hinge Stem  SS400
10 Bypass Brass
11 Bypass Brass
12 Handle Ductile Iron

Technical Data

Applicable Fluid Water, Oil
Applicable Inlet Pressure Max,10kgf/ c
Applicable Temperature Max. 82(Special Order :Max 120)
Min, Pressure Different across the Disc 0.05-----0.1kgf/c
Leakage Allowance 0
End Connection Flanged
Hydrostatic Test 15kgf/c------3min

 

Wafer Check Valve

About Check Valve
Specification
Order Code
Order On Line
CW1000
CW2000
CW3000
CW4000
CW5000
CW6000

Swing Check Valve

Overall and Dimensions

Lift Check Valve

Specification
Valve Dimensions

Smolensky Check Valve

smolensky check valve
Valve Dimensions

smonlensky check valve
Butterfly Valve Wafer check valve Balance valve Gate Valve Globe Valve Ball Valve Y Strainer Flange Pipe fitting

we are selling  our products to the world Copyright © Tang Shan Hong Yuan valve industry Co. LTD. All Rights Reserved
Contact info@hyvp.comwith questions or comments.
Websites: http://www.hyvp.com